1530 Hopeful Lark LaneLas Vegas, NV 89138




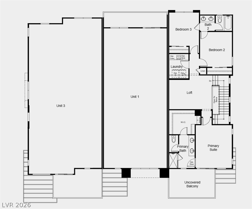
What's Special: Loft | Close to Park | Close to Trails | East Facing Lot | End Unit | Gray Cabinets. New Construction - Ready Now! Built by America's Most Trusted Home Builder. Welcome to the Plan 2 at 1530 Hopeful Lark Lane in Lark Hill at Summerlin! This new end unit home opens to an airy layout where the kitchen with a center island connects to the dining area and inviting great room, making everyday living feel effortless. A powder room and garage access keep the main level comfortable and functional. Upstairs, your primary suite features a private bath, walk-in closet, and an uncovered balcony that adds a breath of fresh air to your day. Two additional bedrooms share a full bathroom, alongside a versatile loft, and a conveniently located laundry room on the second floor. Additional Highlights Include: 8' interior doors, a mud set shower pan with tile surrounds at primary bath, 42" stone gray cabinets in kitchen, and a finished garage. Photos are for representative purposes only.
| 3 days ago | Listing first seen on site | |
| 3 days ago | Listing updated with changes from the MLS® |
Listing information is provided by Participants of the Greater Las Vegas Association of Realtors. IDX information is provided exclusively for personal, non-commercial use, and may not be used for any purpose other than to identify prospective properties consumers may be interested in purchasing. Information is deemed reliable but not guaranteed. Copyright 2026, Greater Las Vegas Association of Realtors.
Last checked: 2026-04-04 10:18 PM UTC

